The Owner Builder Experience

The Plans

The planning stage of the house took over a year and a half. We started out with a general idea of what we wanted, and then went on from there. For design ideas we consulted several books, most of which are available in the resources section of this site. We had originally planned a straw bale house, but the local building inspector was strongly against straw bale construction, so we decided to build a house that had similar insulation properties, but used conventional construction. We considered ICF (Insulated Concrete Forms) but decided against them due to the added cost, the high embodied energy in the concrete and the fact the thermal mass of the concrete would be isolated from the interior of the house with 2" of foam insulation.

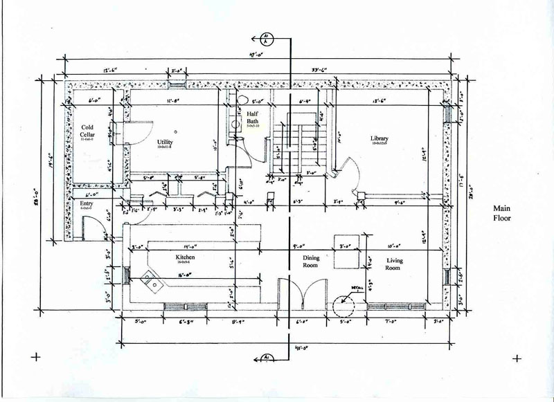
Here are the Plans for the house we built. The house has a walkout basement for the first floor and the second floor is above grade. The house is being built into the side of a hill.

The main entrance is on the side allowing you to come in and immediatly drop your groceries on the kitchen counter. The overall plan is open concept and we have avoided the use of hallways

.

On the second floor, we have widened what would usually be a hallway into a nice sitting room with a woodstove

The house is designed to be highly energy efficient with double studwalls on all exterior frame walls, with R40 of insulation. The undergrade portion is poured concrete with R17 insulation on the exterior (Roxul Drainboard), exposing the concrete to the interior to act as a thermal mass. The main floor has a concrete floor with radiant heat installed to act as a further thermal mass.

The house is oriented to point directly south to take greatest advantage of any solar gain duing the winter, and has 3' overhangs to block the sun during the summer months. The calculated heat loss is around 25,000 BTUs at -18C (0F). Most of the heat will be provided by 2 woodstoves (Vermont Castings Acclaim and Intrepid II) with some solar contribution and a propane powered instantaneous heater (Takagi TKD20) for backup.